Leave a Message

Thank you for your message. We will be in touch with you shortly.

717 Donohoe St.

717 Donohoe St.

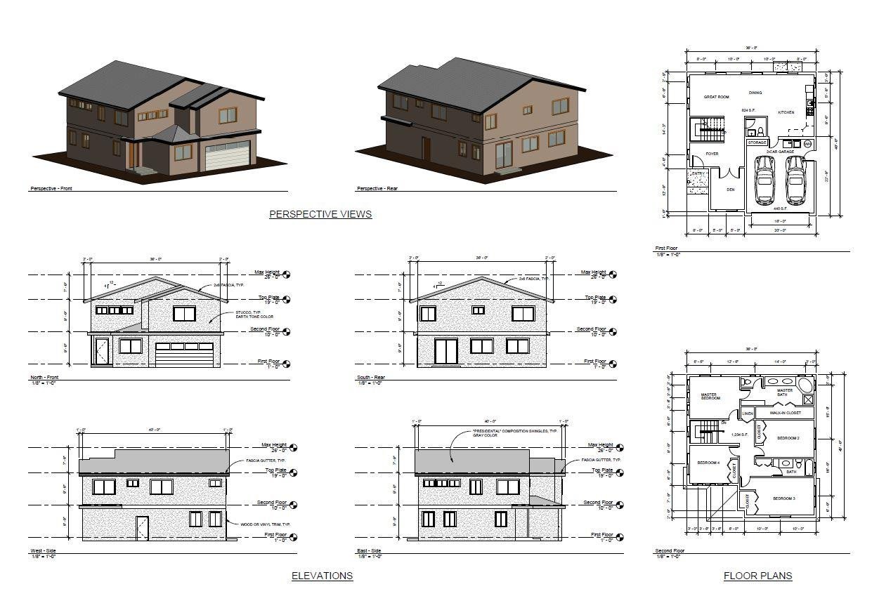
Proposed 6 homes with 2058 sq. ft. living spaces plus 440 sq. ft. garage.

Welcome to 717 Donohoe St.

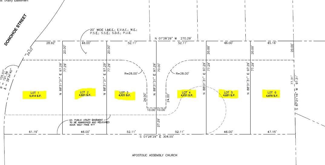
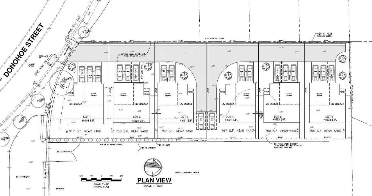
Very unique location in the heart of University Palms, right across from IKEA, Right Next to Amazon, a few minutes away from Facebook. This rare opportunity is about a 28,575 sq. ft. lot size (0.65 Acres) in a process of a 6-lot Subdivision with PD Permit, lot size ranges from front to back 5414 sq. ft., 4621 sq. ft. x 4, 4678 sq. ft. Proposed 6 homes with 2058 sq. ft. living spaces plus 440 sq. ft. garage. Approved by the City's preliminary review, paid fees. The house was demolished with a permit as part of the subdivision process. A new access road to the lot to be from Donohoe St with a 15.59' width. Prime location of East Palo Alto, 4-season hotel, sizzling Downtown Palo Alto, 2.6 Miles away from Stanford.
 

Details

Lot Size: 28,575 sq. ft.

Development Gallery

Browse the amenities offered.

717 Donohoe St.
717 Donohoe St.
717 Donohoe St.

Work With Us

With 20 years in Bay Area markets, Shawn Jahanbani delivers zoning expertise, strategic property insight, optimization, and skilled negotiation to maximize value.